SW House / Jacobsen Arquitetura

By AD Editorial Team

Architects: Jacobsen Arquitetura
Location: Porto Feliz – SP,
Architect In Charge: Paulo Jacobsen, Bernardo Jacobsen
Coordination: Jaime Cunha Jr.
Team: Edgar Murata, Henrique Carvalho
Area: 1350.0 sqm
Year: 2013
Photographs: Leonardo Finotti

Interior Design: Jacobsen Arquitetura
Author: Eza Viegas
Team: Silvia Fernandez, Tatiana Kamogawa, Rahyja Afranje, Caroline de Oliveira
Landscape: Gil Fialho
Lighting Design: Lightworks
Facilities: MVF Engenharia de Projetos
Air Conditioning: KSG Projetos
Audio And Video: Quality Tecnologia e Integração
Structure: LHG Engenharia
Construction: Gaia
Site Area: 7940,00m²
Started: 2008

From the architect. This house situated in Porto Feliz was designed for a family to spend their weekends outside the city of São Paulo.

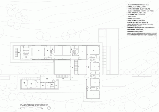
Firstly we worked with the natural topography of the land with a longitudinal stone wall of 3 meter, which worked as a topography landmark and divided the plot into two plain garden levels. The upper level, near the road, holds the entrance while the lowest level, overlooking the lake, hosts the leisure part of the house.

Our goal with this implementation was to create a single story house when viewed from the road, but as the extension of the house accompanied the stone wall a piloti space would be formed on the lower level.

The piloti space formed holds verandas and all of the social area, outlined by sliding glass frames. On the superior level besides the accesses and service areas that are facing the road, are the family’s bedrooms and guest bedrooms overlooking the lake. The leisure area such as the children’s playroom, home cinema, sauna and spa meet within the stone wall, below the entrance level, thus diminishing the visual impact of the constructed house. The pool connects these embedded spaces with the gardens.

A shelter/ pergola in square laminated wooden modules connect the volumes of the upper level, creating in these spaces a garage, hall access and an interior garden while providing eaves for the construction.

A corten steel gardener practically shields the entire upper deck, providing more privacy to the bedrooms as well as increasing the shading of the lower level.

SW House / Jacobsen Arquitetura © Leonardo Finotti
SW House / Jacobsen Arquitetura © Leonardo Finotti
SW House / Jacobsen Arquitetura © Leonardo Finotti
SW House / Jacobsen Arquitetura © Leonardo Finotti
SW House / Jacobsen Arquitetura © Leonardo Finotti
SW House / Jacobsen Arquitetura © Leonardo Finotti
SW House / Jacobsen Arquitetura © Leonardo Finotti
SW House / Jacobsen Arquitetura © Leonardo Finotti
SW House / Jacobsen Arquitetura Floor Plan
SW House / Jacobsen Arquitetura Floor Plan
SW House / Jacobsen Arquitetura Floor Plan
SW House / Jacobsen Arquitetura Section
SW House / Jacobsen Arquitetura Section

Source:: http://feedproxy.google.com/~r/ArchDaily/~3/hJta1h1hYb4/

Subscribe
Notify of
guest
0 Comments
Inline Feedbacks
View all comments