Architects: DIALOG , Kasian Architecture Interior Design & Planning
Location: Calgary, AB, Canada
Area: 13500.0 sqm
Year: 2011
Photographs: Courtesy of DIALOG
Dome Consultants: Kasian Architecture Interior Design & Planning
Interior Design: DIALOG, Kasian Architecture Interior Design & Planning
Structural: Stantec
Electrical : Stebnicki Robertson
Landscape : O2 Planning + Design
Civil: Morrison Hershfield

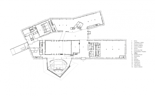
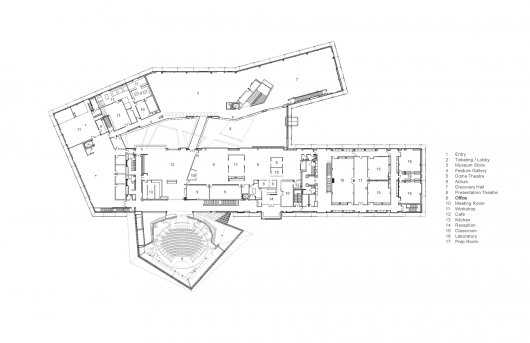
From the architect. One of the most challenging aspects of this 13,500 sq m project was to provide a facility that is memorable, youthfully exuberant and dynamic, both from a distance and up-close, within a limited budget. To this end, the building was conceived as an exhibit platform where the usual boundaries of inside and outside are blurred and the building itself takes on new, colourful forms as exhibits come and go.
The building skin is layered. The envelope itself is simple; a neutral, high-performance building system that acts as the canvas for the exhibit platform.

The scrim, in front, is peeled away in different places around the building, revealing temporary exhibits, graphics and artwork. When viewed from a distance it will provide a rich patina of colour and movement and when viewed up close a detailed framework of identifiable objects and images. Extensive energy modeling assisted in optimizing the building envelope and scrim.

Telus Spark is LEED® Gold Certified, and in keeping with the Science Centre’s core values, aims to educate and inform its visitors on the importance of protecting the earth.

Porous paving, bio-swales, on-site water retention/reuse and wetland areas are integrated with a high performance building envelope that uses solar shading, natural light and has a solar ready roof. Rather than a typical, forced-air ventilation and cooling system, the building incorporates displacement ventilation and radiant panels to distribute fresh air and highly effective heating and cooling for visitor comfort.

The atrium and extensive lobby areas are heated and cooled with a radiant chilled/heated slab system for a non-intrusive but highly effective conditioning system.Underseat displacement ventilation is provided in the theatre for optimum thermal comfort and ventilation effectiveness.

Telus Spark / DIALOG + Kasian Architecture Interior Design & Planning originally appeared on ArchDaily, the most visited architecture website on 16 Mar 2015.
send to Twitter | Share on Facebook | What do you think about this?
Source:: http://feedproxy.google.com/~r/ArchDaily/~3/WvVLlL87FT8/













