Architects: Kengo Kuma & Associates
Location: Towada, Aomori Prefecture, Japan
Construction: Atsushi Sato structural design firm
Area: 1875.0 sqm
Year: 2014
Photographs: Kenta Hasegawa

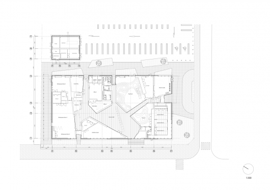
From the architect. This wooden building was constructed as the city’s community center for people to gather. We repeated the roofs for the façade so that it could merge into the neighboring townscape of small houses.

On the exterior wall, wainscot panels are applied with spaces in between, and it expresses a warm and friendly face to the street of the land to the north. The street in front of the building actually extends into the interior, and is given the name “Michi-no-Hiroba (plaza for the street),” around which a children’s playroom, cooking studio and tatami room are arranged.



Towada Community Plaza / Kengo Kuma & Associates originally appeared on ArchDaily, the most visited architecture website on 30 Apr 2015.
send to Twitter | Share on Facebook | What do you think about this?
Source:: http://feedproxy.google.com/~r/ArchDaily/~3/fRbnxdv2dkM/

























