Architects: Ismael Ameneiros Rodríguez & Santiago Rey Conde
Location: A Estrada, Pontevedra, Spain
Project Year: 2014
Photographs: Héctor Fernández Santos-Díez
From the architect. The intervention consisted of designing a home-studio on the top two floors of a residential building constructed in the late 90s, whose top floors, originally independent, were never inhabited. We proposed to group these two levels to form a single dwelling with a study / office area.

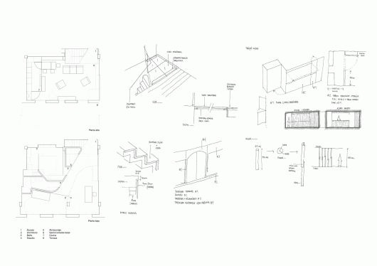
Taking advantage of the diaphanous upper level and terrace, the living room, dining room and a wooden box that houses the kitchen are linked. The gradient of privacy (upstairs lounge and downstairs with bedrooms) is interrupted with an office / studio at the bottom, differentiated in its form and materials. In this level, a white curved wall hides the bedrooms and bathrooms, while a transparent pine lattice reveals that open work corner.

On the ground floor are soft materials and textures, contrasting colors and a marked integrated lighting. The functional program includes a master bedroom treated as a suite with private bathroom. A second bedroom behind a large sliding and bound with the study lattice door. Except for the master bedroom, the other two rooms could exchange their program, providing flexibility. In the future, the possibility of increasing the privacy provided by the lattice with a curtain fabric or canvas is proposed. The program changes over time, so we proposed an open and adaptable framework.

Connecting to the top floor, a polished concrete staircase anticipates a change in the finishes.

Upstairs, textures gain prominence, using painted brick, exposed concrete painted black, steel railing, etc. Two exposed concrete skylights provide additional natural light to interior areas of the house. The first, on the landing upstairs: glass floor on concrete ring beams, a non-ground. The second, a hole in the floor of the living room, as a prying view on the ground floor bathroom.

On this floor, a wooden box houses the kitchen. It opens or closes completely to the living room, the door becomes a table, a counter is open and becomes a bar. The heat-treated wood acts as a counterpoint to the dominant white. The custom-made furniture in the living room, bedrooms, bathrooms and kitchen, as shelves, hangers, door handles, benches, tables, dressers … personalize and distinguish the house.

Two Level Apartment Renovation / Ameneiros Rey | HH Arquitectos originally appeared on ArchDaily, the most visited architecture website on 20 Mar 2015.
send to Twitter | Share on Facebook | What do you think about this?
Source:: http://feedproxy.google.com/~r/ArchDaily/~3/xt9CQhTvegQ/
















