UNAB Viña del Mar / S3 Schmidt Arquitectos

By AD Editorial Team

Architects: S3 Schmidt Arquitectos
Location: Viña del Mar, Viña del Mar, Valparaíso Region,
Project Architects: Nicolas Norero
Collaborators: Karen Pradenas, Lina Rojas, Cristián Maze, Constanza Larach, Paloma Sanchez
Associated Architects: Horacio Schmidt Cortes, Horacio Schmidt Radic, Martin Schmidt Radic
Project Area: 43000.0 m2
Project Year: 2013
Photographs: Aryeh Kornfeld

Construction: Guzman y Larraín
Structures: Sergio Contreras
Landscape: Juan Grimm
Facades: Hunter Douglas
Double Enclosure Consultants: GT2P y SHAPE
Prefabricated Partitions: PREMO España

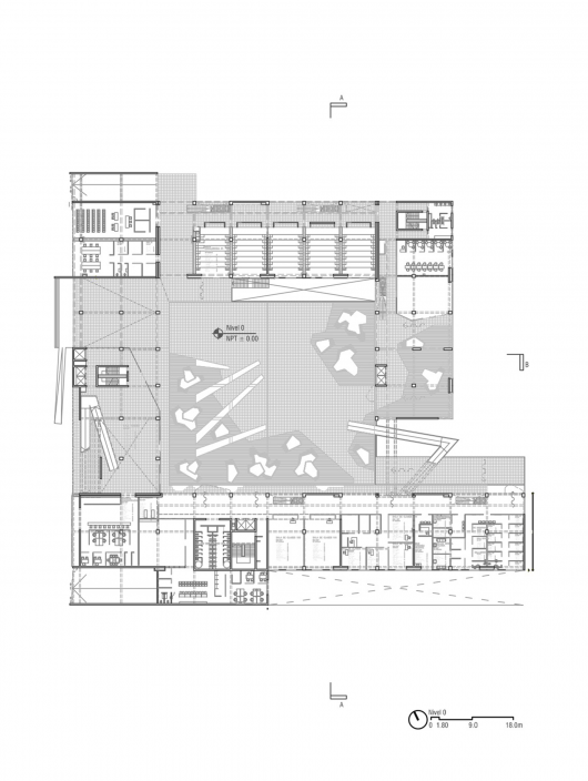
From the architect. The building is conceived as a large campus that houses all the schools of the University, organized into 4 main areas, Health, Sciences, Economics and Business and Engineering.

The Humanities and Mathematics areas are organized toward the perimeter of the flat area of the site, forming the Main Courtyard. The sciences area is located in a separate volume, the positive of the void of the plaza, it is on the upper part of the site with a privileged view of the city of Viña del Mar.

The Main Courtyard thus becomes the space of principal exchange on campus, a multipurpose space, where students of all schools meet. This space is set by planters on the first level and in the north and west facades of the courtyard, where the circulation is, thus creating both a horizontal and a vertical garden and converting the upper corridors into places of permanence.

The circulations are distributed so as to obtain the best sunlight for classrooms, halls and laboratories, thus orienting halls and laboratories mainly to the east and south and the corridors to the north and west.

The building is designed through half floors connected by ramps, with this we enable students to wander especially in the access area, which gains en extra half height giving more hierarchy to the access and public spaces.

Since the building was built in just 16 months, we opted for industrialized finishing materials, inside much of the partition walls are prefabricated thereby accelerating construction and allowing future flexibility and 70% reuse of materials.

For the design of the facades we chose to work with glass and a single metal cladding, which on the west facade is presented as a veil, parametrically designed to exploit optimal lighting conditions, and to protect the facade with greater sun exposure. We took as precedent the last 10 years of direct solar radiation, clouds and diffuse solar radiation, taking the average from March to December, which determined the angle of lattices, this is what gives the movement and image of the building from the street.

UNAB Viña del Mar / S3 Schmidt Arquitectos © Aryeh Kornfeld
UNAB Viña del Mar / S3 Schmidt Arquitectos © Aryeh Kornfeld
UNAB Viña del Mar / S3 Schmidt Arquitectos © Aryeh Kornfeld
UNAB Viña del Mar / S3 Schmidt Arquitectos © Aryeh Kornfeld
UNAB Viña del Mar / S3 Schmidt Arquitectos © Aryeh Kornfeld
UNAB Viña del Mar / S3 Schmidt Arquitectos © Aryeh Kornfeld
UNAB Viña del Mar / S3 Schmidt Arquitectos © Aryeh Kornfeld
UNAB Viña del Mar / S3 Schmidt Arquitectos © Aryeh Kornfeld
UNAB Viña del Mar / S3 Schmidt Arquitectos © Aryeh Kornfeld
UNAB Viña del Mar / S3 Schmidt Arquitectos © Aryeh Kornfeld
UNAB Viña del Mar / S3 Schmidt Arquitectos © Aryeh Kornfeld
UNAB Viña del Mar / S3 Schmidt Arquitectos Site Plan
UNAB Viña del Mar / S3 Schmidt Arquitectos Plan
UNAB Viña del Mar / S3 Schmidt Arquitectos Plan
UNAB Viña del Mar / S3 Schmidt Arquitectos Plan
UNAB Viña del Mar / S3 Schmidt Arquitectos Section
UNAB Viña del Mar / S3 Schmidt Arquitectos Section
UNAB Viña del Mar / S3 Schmidt Arquitectos Section

Source:: http://feedproxy.google.com/~r/ArchDaily/~3/6pYbGH2yBC8/

Subscribe
Notify of
guest
0 Comments
Inline Feedbacks
View all comments