Architects: Architecture49
Location: Thompson, MB, Canada
Interiors & Furniture, Landscape Architect: Architecture49
Area: 8155.0 sqm
Year: 2014
Photographs: Tom Arban Photography
Structural Engineer: Crosier Kilgour & Partners Ltd
Mechanical Engineer, Electrical Engineer: WSP
Civil Engineer: Neegan Burnside Ltd
Energy Engineer: GF Shymko & Associates Inc
Leed Consultant: Morrison Hershfield
Acoustic Consultant: Dan Lyzun & Associates Ltd
Code Consultant: LMDG Building Code Consultants Ltd
3 D Visualizer: Norm Li AG & I Inc
Artist/Carver: Northern Buffalo Sculpture
Construction Manager: PCL Constructors Canada
Electrical Contractor, Mechanical Contractor: Wescan

From the architect. UCN’s previous home was a retrofit solution in a group of old dormitory buildings where classrooms and offices spread out along long, narrow, internal corridors with little possibility for student interaction. No surprise that when describing their ideas for the new campus they talked about sunlight, views and an inclusive community environment for their students.

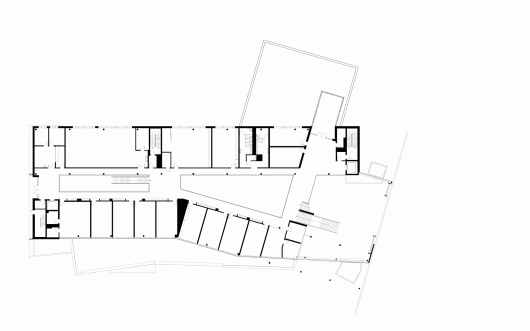
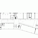
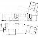
The new campus building has a floor area of 87,780sf, and was designed and built in conjunction with the Thompson Regional Community Centre on site, to create a ‘town centre’. The two buildings share a large unobstructed opening, making it feel like one continuous space. The two facilities share amenities such as food services, a gymnasium, day care and library.

The internal street and central atrium space function as the spine of the project with classrooms and offices opening directly from it. Here, students and the community are encouraged to relax, study, and interact with one another in informal seating and study areas scattered throughout the 4 storey volume.



The signature south façade is the public face of the new campus as you enter the site. Conceptually it is transparent, reflective of the educational and community programs contained within. The upper floors are shaded by an array of horizontal slats inspired by vernacular aboriginal building techniques and the craftsmanship of the canoes used by native peoples for transportation on the Burntwood River. A dramatic and welcoming two-storey main entrance strengthens the connection to the Community Centre, and acts as the central meeting area.

The student experience inside the building is about maintaining a safe and welcoming environment, with an abundance of natural light and exterior views. The material palette was simplified to materials that relate to the region, and aboriginal cultural values while also providing texture and warmth to the project. With this in mind, the building utilized local granite, natural cedar and metal cladding. A Green roof, sloping up from grade level, provides a natural outdoor environment for students and staff, and gives the appearance the building grows out of the land. The curvature of the footprint creates a welcoming gathering place with southern exposure, protected from the north winter winds.

University College of the North / Architecture49 originally appeared on ArchDaily, the most visited architecture website on 17 Mar 2015.
send to Twitter | Share on Facebook | What do you think about this?
Source:: http://feedproxy.google.com/~r/ArchDaily/~3/BCQoGz4neOw/

























