Architects: Johnston Architects
Location: Winthrop, WA, USA
Design Team: Johnston Architects, BTL Engineering, Lost River Construction
Designer: Ray, Mary Johnston
Year: 2014
Photographs: Courtesy of Johnston Architects

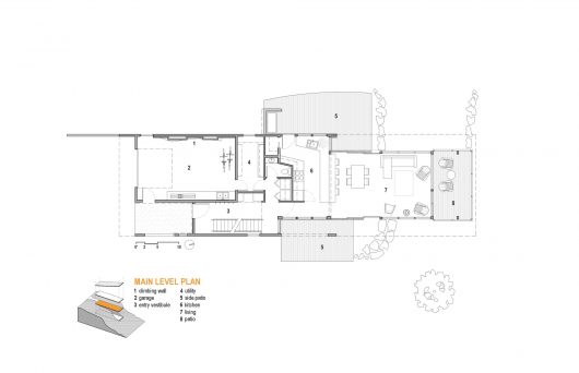
From the architect. Nestled into the hills outside of Winthrop, Washington, Wolf Creek Red Tail is a single-family home designed to interact with and emphasize the effects of the surrounding landscape. The exterior material palette contrasts warm wood and cool grey metal, with a soaring roof that evokes the feathered tail of the building’s namesake: the red-tailed hawk.

The owners were interested in a building that captured the sound of a creek located downhill from the house, which ultimately led to the design of a roof form that reflects the ambient creek-sound to the main living space. The house also makes the most of the stunning views of the Methow valley and its backdrop of mountain peaks, visible from both living and sleeping quarters. In the spirit of merging the internal space with its surrounding environment, the bedroom is designed to evoke the feeling of a treehouse.

Wolf Creek Red Tail / Johnston Architects originally appeared on ArchDaily, the most visited architecture website on 05 Jun 2015.
send to Twitter | Share on Facebook | What do you think about this?
Source:: http://feedproxy.google.com/~r/ArchDaily/~3/XB5ljbamkfo/















