Yoshi Nursery / Tatta Architects Office

By Fabian Cifuentes

Architects: Tatta Architects Office
Location: Nagasaki, Nagasaki Prefecture,
Year: 2015
Photographs: Nishinihon Syabou

Collaborators: Atelier NID
Construction: Umemuragumi
Structural Design: Shelter

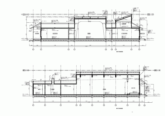
From the architect. Nursery construction of wooden bungalow that has been planned in the mountains of Sasebo . Place a play room in the center of the square of the plane. Is office around , the place each nursery room , etc. various room has a floor plan that was conscious of clarification of flow line .

Playroom we have achieved a large space in the wooden adopted the structure of quasi- arch . Around than nursery room. Horizontal continuous windows overlooking the nature , and has established the eaves of the maximum output 3m for building periphery to create a shade to the outsid.

In order to integrate the building around , appearance highlights the horizontality by eaves and horizontal window. I aimed the nursery to nurture children in a natural appearance along with the surrounding mountains .

Yoshi Nursery / Tatta Architects Office © Nishinihon Syabou
Yoshi Nursery / Tatta Architects Office © Nishinihon Syabou
Yoshi Nursery / Tatta Architects Office © Nishinihon Syabou
Yoshi Nursery / Tatta Architects Office © Nishinihon Syabou
Yoshi Nursery / Tatta Architects Office © Nishinihon Syabou
Yoshi Nursery / Tatta Architects Office © Nishinihon Syabou
Yoshi Nursery / Tatta Architects Office © Nishinihon Syabou
Yoshi Nursery / Tatta Architects Office © Nishinihon Syabou
Yoshi Nursery / Tatta Architects Office © Nishinihon Syabou
Yoshi Nursery / Tatta Architects Office © Nishinihon Syabou
Yoshi Nursery / Tatta Architects Office © Nishinihon Syabou
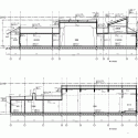
Yoshi Nursery / Tatta Architects Office Floor Plan
Yoshi Nursery / Tatta Architects Office Section
Yoshi Nursery / Tatta Architects Office Detail

Source:: http://feedproxy.google.com/~r/ArchDaily/~3/HjuEMfVj07M/

Subscribe
Notify of
guest
0 Comments
Inline Feedbacks
View all comments