Architects: Mccullough Mulvin Architects
Location: 4 Leinster Road, Louis Lane, Dublin 6, Ireland
Year: 2010
Photographs: Christian Richters
Structural Engineers: O’Connor Sutton Cronin
Mechanical And Electrical Engineers: Homan O’Brien
Quantity Surveyors: Brendan Merry & Partners
Health & Safety Consultants: Bruce Shaw Safety Management
Fire Safety Engineers: Michael Slattery & Associates
Main Contractor: Joseph McNamee & Sons / Michael McNamara & Co. / Neil Martin Construction Ltd

From the architect. The project takes on five contiguous Protected Structures in central Dublin and converts them as the offices, library and gallery of the Dublin Dental Hospital. The five buildings in a terrace, three Georgian and two Victorian ones, have many of the problems associated with buildings of their age; they will be upgraded to modern standards of fire safety, insulation and accessibility by very careful work on the fabric, using all means (voids, fireplaces, floor voids) to address deficiencies without damaging older materials, spaces or finishes.

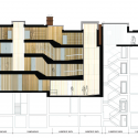
Older finishes, opes, doors and windows are all retained where possible. A series of new lightwells are dropped through the fabric to bring light to the lower levels, forming niches and spaces around an expanded modern central corridor intervention used for the display of the Hospitals collection of art; the spaces literally work as a gallery as well as a circulation space. The rooftop is transformed by the addition of dramatic new ‘pods’ overlooking Trinity College containing a library and art display spaces.

Overall, the work to conserve existing fabric and to sustainably add coherent and appropriate modern work to it is complex but results in architecture which gains by the juxtaposition . The work was being carried out under the terms of the new Government form of Contract.

Dublin Dental Hospital / Mccullough Mulvin Architects originally appeared on ArchDaily, the most visited architecture website on 18 Mar 2015.
send to Twitter | Share on Facebook | What do you think about this?
Source:: http://feedproxy.google.com/~r/ArchDaily/~3/jp0apSBFfno/






















