Architects: Moke Architecten
Location: Bonheiden, Belgium
Area: 2380.0 sqm
Year: 2015
Photographs: Thijs Wolzak
Design Team: Dok architecten; Ernst Verwijnen, Johan Rombouts, Renske Bäckes, Urszula Kozminska
Installation Design: Boydens
Structural Engineer: ABT
Site Supervision: ABT
Work Drawings: ABT

From the architect. The project was obtained through a competition. The architect is Gianni Cito. At the time of the competition entry and the building design he was co-founder and architect of Dok Architecten. The site supervision he did as partner of Moke Architecten, a young and rapidly growing firm for architecture and urbanism in Amsterdam. With this growing group of 8 architects/urbanist/interior architects Moke is involved in school designs, large inner city housing schemes, the renovation and extension of a museum, two shopping centers and urban plans.

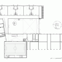
The critical concept of the competition entry was the reuse of the existing former town hall building. The existing building of the kindergarden was old and in disrepair, therefor a new building was needed.

The kids will grow up in an environment where both the presence and past are present. The old cityhall of Bonheiden is transformed into the entrance lobby and contains all administrative functions. Kids enter the new school through the stylish former city hall, a picturesque building and one of the few remaining old buildings in the town of Bonheiden.

This old building is connected to the new school building building via a ‘cloister’. The ‘cloister’ lies around the courtyard and provides access to all rooms. The courtyard accommodates the playground. Also the primary school building is maintained. The resultant of this ensemble of old and new buildings is an exiting and safe environment for small kids to play and learn.

All classrooms, the central hall and the sports facilities are allocated in the new building. The building has a shed roof, that provides northern light and very high spaces. The classrooms have entresol floors that make use of the height of the spaces. The classes also have very long and low windows. The various directions of daylight give the rooms a vivid and comfortable atmosphere.

Most furniture is integrated in the architecture. Classrooms have furniture walls in lively colors, they contain all storage and a kitchenette. The facade between the cloister and the courtyard is indeed a big shelf system and contains besides shelves also drawers and cupboards. The facade becomes a vitrine that shows childrens’ work.

While the wooden courtyard gives a soft and warm impression, the sturdy brick street facade makes the school building robust and secure.

Gekko / Moke Architecten originally appeared on ArchDaily, the most visited architecture website on 18 Mar 2015.
send to Twitter | Share on Facebook | What do you think about this?
Source:: http://feedproxy.google.com/~r/ArchDaily/~3/CMrNe_Y3nCw/



















