RSC Residence / Jacobsen Arquitetura

By AD Editorial Team

Architects: Jacobsen Arquitetura
Location: – SP, Brasil
Project Architects: Paulo Jacobsen e Bernardo Jacobsen
Coordinator: Jaime Cunha Jr.
Team: Edgar Murata, Christian Rojas, Rafael Zampini.
Project Area: 1160.0 m2
Project Year: 2014
Photographs: Leonardo Finotti

Interior Design:
Interiors Project Designer: Eza Viegas
Interiors Team: Caroline de Oliveira, Heloisa Zarpelon, Isabel Benoliel.
Landscape: Cenário Paisagismo
Lighting: Lightworks
Electrical And Hydraulics: Pessoa e Zamaro
Hvac: Logitec Projetos
Automatization: AVC Service
Structure: Benedicts Engenharia
Aluminum Framing: Arteal
Wooden Framing: Oficina de Marcenaria
Construction: MFC
Site Area: 5746 m²

From the architect. The topographic model of the site was crucial to address the siting of this house. Access is at the highest level and from there a slight slope faces the best view and better sunlight.

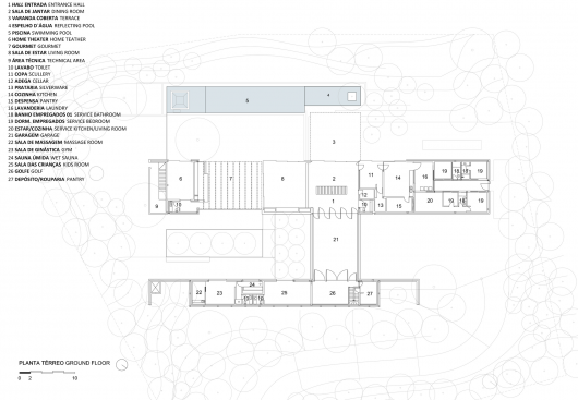
Three longitudinal blocks were created and arranged in the model. The first contains the land to create a large master plan. The second block is parallel to the first, released in plan and facing a view of the lake. The third block, finally, rests perpendicular on the other two.

Each volume has an established program. We define areas of leisure and spa in the first block, service and social areas in the second and private areas in the last. In the third block, two important spaces emerged in the project: a 12-meter void, which houses the garage, and a 9-meter balance, which houses the master suite upstairs and advances toward the lake, forming a balcony on the lower floor.

From the technical process, we highlight the complex detailing and execution of the engineers with respect to the metal structure, and the carpenters for the wood panels lining the upper block.

Residência RSC / Jacobsen Arquitetura © Leonardo Finotti
Residência RSC / Jacobsen Arquitetura © Leonardo Finotti
Residência RSC / Jacobsen Arquitetura © Leonardo Finotti
Residência RSC / Jacobsen Arquitetura © Leonardo Finotti
Residência RSC / Jacobsen Arquitetura © Leonardo Finotti
Residência RSC / Jacobsen Arquitetura © Leonardo Finotti
Residência RSC / Jacobsen Arquitetura © Leonardo Finotti
Residência RSC / Jacobsen Arquitetura © Leonardo Finotti
Residência RSC / Jacobsen Arquitetura Site Plan
Residência RSC / Jacobsen Arquitetura Ground Floor Plan
Residência RSC / Jacobsen Arquitetura Upper Floor Plan
Residência RSC / Jacobsen Arquitetura Sections and Facade

Source:: http://feedproxy.google.com/~r/ArchDaily/~3/LjC_BUG2bVg/

Subscribe
Notify of
guest
0 Comments
Inline Feedbacks
View all comments